How to Open an IRP Account in Illinois: A Step-by-Step Guide

- Understanding the IRP Account: What You Need to Know Before Opening in Illinois
- Step-by-Step Guide: How to Open Your IRP Account in Illinois
- Required Documents and Information for Opening an IRP Account in Illinois
- Common Mistakes to Avoid When Opening an IRP Account in Illinois
- Frequently Asked Questions About Opening an IRP Account in Illinois
Understanding the IRP Account: What You Need to Know Before Opening in Illinois
Opening an IRP (International Registration Plan) account in Illinois is an essential step for commercial vehicle owners who wish to travel across multiple states. This plan allows for the registration of vehicles that operate in more than one jurisdiction, simplifying the process and ensuring compliance with various state regulations. Before you proceed, its crucial to understand the requirements and benefits of an IRP account.
Eligibility Requirements
To qualify for an IRP account in Illinois, certain criteria must be met. Here are the key requirements:
- Ownership of a commercial vehicle with a gross weight of over 26,000 pounds or a combination of vehicles exceeding that weight.
- Intention to operate the vehicle in multiple jurisdictions.
- Compliance with the states insurance and safety regulations.
Understanding these prerequisites can save you time and ensure that your application is processed smoothly.
Documents Needed for Application
Before opening your IRP account, gather the necessary documentation. Typically, you will need:
- Proof of vehicle ownership, such as a title or bill of sale.
- Current vehicle registration.
- Insurance documents that meet state requirements.
- Completed IRP application form.
Having these documents ready will facilitate a more efficient registration process, minimizing delays.
Benefits of an IRP Account
Establishing an IRP account in Illinois comes with several advantages. These include:
- Streamlined registration across multiple states, reducing the need for individual state registrations.
- Cost-effectiveness, as fees are based on the distance traveled in each jurisdiction.
- Access to a unified reporting system, simplifying record-keeping and compliance.
These benefits make the IRP account a practical choice for commercial vehicle operators looking to enhance their operational efficiency while adhering to regulatory requirements.
Step-by-Step Guide: How to Open Your IRP Account in Illinois
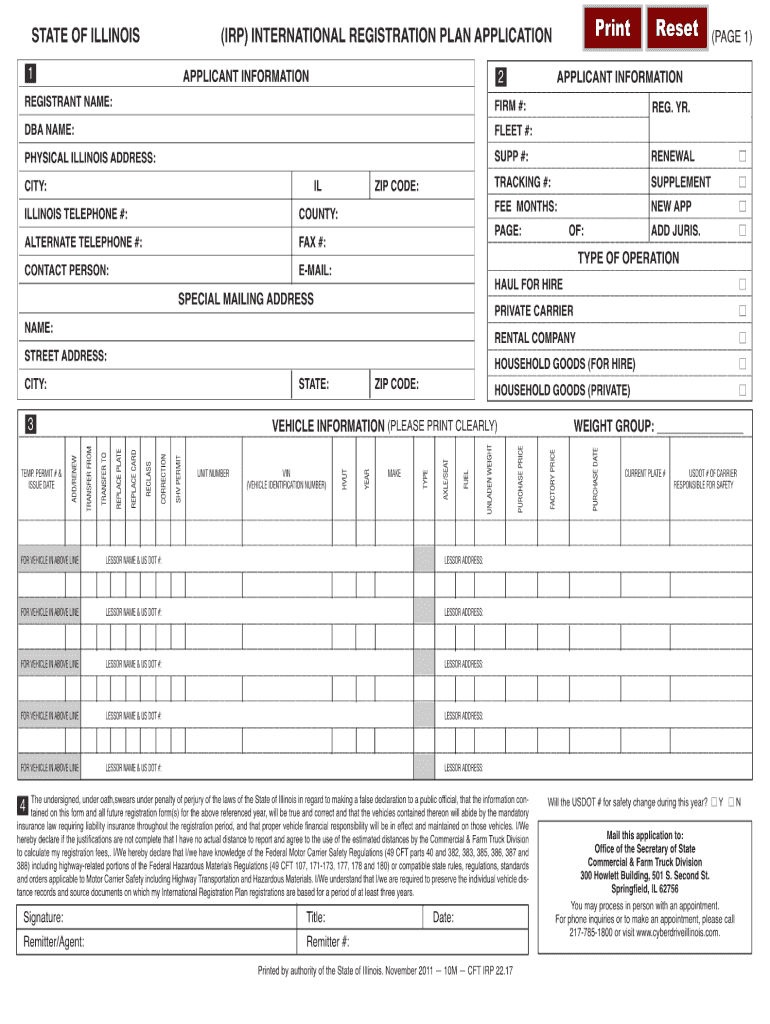
Opening an International Registration Plan (IRP) account in Illinois is a straightforward process that enables you to register your commercial vehicle for operation across multiple states. Follow this step-by-step guide to ensure you complete your registration efficiently and correctly.
Step 1: Gather Required Documents
Before you begin the registration process, it’s crucial to collect all necessary documents. You will need the following:
- Proof of Ownership: This can be a title, bill of sale, or lease agreement.
- Proof of Identification: A valid drivers license or state ID.
- Vehicle Information: Details such as the Vehicle Identification Number (VIN), weight, and type of vehicle.
- Proof of Insurance: A current insurance policy that meets Illinois requirements.
Step 2: Complete the Application
Once you have gathered all the required documents, the next step is to complete the IRP application form. This form can be found on the Illinois Secretary of State’s website or at your local Department of Motor Vehicles (DMV) office. Ensure that you fill out all sections accurately, including your business information and vehicle details.
Step 3: Submit Your Application and Fees
After completing the application, submit it along with the necessary fees. The fee structure may vary based on the weight of your vehicle and the states you plan to operate in. Payment can typically be made via check, credit card, or cash, depending on the submission method (online or in-person). Be sure to keep a copy of your application and payment receipt for your records.
Step 4: Receive Your Registration and Plates
Once your application is processed, you will receive your IRP registration and license plates. This process can take several days to a few weeks, depending on the volume of applications. After receiving your registration, ensure that all details are correct and affix your new plates to your vehicle as required by Illinois law.
Required Documents and Information for Opening an IRP Account in Illinois
To successfully open an International Registration Plan (IRP) account in Illinois, specific documents and information are essential. This ensures compliance with state regulations and facilitates the registration process for commercial vehicles operating across multiple jurisdictions. Below is a detailed overview of the necessary requirements.
Essential Documents
When preparing to open an IRP account, you must gather the following essential documents:
- Proof of Business Entity: This can include your business registration documents, articles of incorporation, or a partnership agreement.
- Federal Employer Identification Number (EIN): An EIN is required for tax purposes and can be obtained from the IRS.
- Title and Registration for Each Vehicle: You must provide the title and current registration for each vehicle you plan to register under the IRP.
- Proof of Insurance: A valid insurance policy that meets the minimum coverage requirements for commercial vehicles is mandatory.
Additional Information Needed
In addition to the required documents, certain information must be provided to complete the IRP application process. This includes:
- Vehicle Information: Details such as the make, model, year, Vehicle Identification Number (VIN), and weight of each vehicle.
- Fleet Information: If you are registering multiple vehicles, a list of all vehicles in your fleet, including their registration states, is necessary.
- Operational Information: You may need to provide information about your business operations, including the type of goods transported and primary routes.
Having all the required documents and information ready will streamline the process of opening your IRP account in Illinois. It is crucial to ensure that everything is accurate and up to date to avoid any delays or complications during the registration process.
Common Mistakes to Avoid When Opening an IRP Account in Illinois
Opening an International Registration Plan (IRP) account in Illinois can be a straightforward process, but several common mistakes can complicate it. Understanding these pitfalls is crucial for ensuring compliance and efficiency. One of the most significant errors is failing to gather all necessary documentation before starting the application process. This includes proof of residency, vehicle title, and proof of insurance. Missing any of these essential documents can lead to delays and additional fees.
Another frequent mistake is underestimating the importance of accurate vehicle information. When registering your vehicle, ensure that details such as the Vehicle Identification Number (VIN), weight, and type of vehicle are correct. Any discrepancies can result in complications during the registration process. It’s advisable to double-check this information before submitting your application.
Additionally, many applicants overlook the fee structure associated with the IRP account. Each state has different fee requirements, and Illinois is no exception. Be sure to familiarize yourself with the applicable fees based on your vehicles weight and type. Ignoring this aspect can lead to unexpected costs or insufficient funds during the registration process.
Finally, some applicants fail to understand the renewal process and timeline. The IRP registration is not a one-time event; it requires annual renewal. Keep track of renewal dates and any changes in your vehicle status to avoid lapses in registration. Missing renewal deadlines can lead to penalties and complications with your vehicles registration status.
Frequently Asked Questions About Opening an IRP Account in Illinois
Opening an International Registration Plan (IRP) account in Illinois can seem complex, but many common questions can help clarify the process. Below are some frequently asked questions that prospective applicants often have regarding IRP accounts.
What is an IRP Account?
An IRP account allows commercial vehicle owners to register their vehicles for operation in multiple states. This registration simplifies the process by allowing carriers to pay fees based on the total distance driven in each state rather than registering vehicles individually in each state.
Who Needs an IRP Account in Illinois?
Typically, any motor carrier operating a commercial vehicle with a gross weight of over 26,000 pounds or transporting more than eight passengers for hire is required to have an IRP account. Additionally, if you are operating a vehicle for hire that is used in interstate commerce, you will also need to register under the IRP.
How Do I Open an IRP Account?
To open an IRP account in Illinois, follow these steps:
- Gather Required Documentation: This includes proof of ownership, proof of insurance, and previous registration documents.
- Complete the Application: Fill out the IRP application form, ensuring that all information is accurate and up to date.
- Pay the Fees: Fees will vary based on the weight and number of jurisdictions in which you plan to operate.
- Submit Your Application: Applications can typically be submitted online or in person at your local Secretary of State office.
How Long Does It Take to Get My IRP Account Approved?
The approval process for an IRP account can vary based on the completeness of your application and the current workload of the processing office. Generally, it may take anywhere from a few days to several weeks. To expedite the process, ensure that all documents are in order and that you have paid the necessary fees upfront.

Leave a Reply
You must be logged in to post a comment.